Къща с паркинг на покрива
Голяма част от луксозните къщи и имения в Лос Анджелис са построени върху стръмни хълмове и скали. Да живееш на подобно място винаги гарантира уникално красива гледка, но питате ли се какво им е на архитектите?
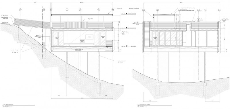
Anonymous Architects успяват да се справят с това огромно предизвикателство, построявайки Car Park House. Като се съобразяват с особеностите на терена, архитектите и дизайнерите на студиото проектират сграда с „обратна“ логика.
Гаражът за две коли е разположен на покрива, а къщата с основните помещения за живеене под тях. Влизането става само през моста, което създава усещането, че имението плава над склона.
Да видим!
Снимки: Anonymous Architects/Steve King
