Джобен апартамент в Будапеща
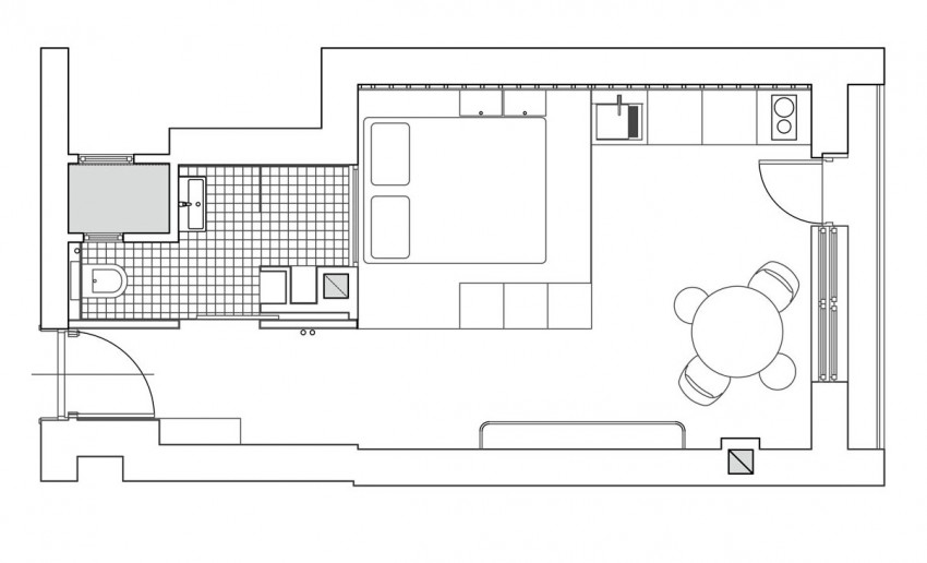
Този малък апартамент, намиращ се в Будапеща, Унгария, е голям само 30 квадратни метра, но така е организирано малкото пространство, че не липсва нито едно удобство.
Апартаментът се състои от една голяма стая, в която са разположени кухненският бокс, мястото за хранене и социални контакти, бюро за работа, легло за двама.
Интересно е решението със спалнята, която се намира непосредствено до кухненския бокс, но визуално е отделена от него чрез шперплатовия шкаф-скрин, върху който е разположено самото място за спане.
Да видим!
Снимки: glodibalazs.hu
